0 Lincoln 3 NE of 5th Street

< back to properties

gallery view
map view

0 Lincoln 3 NE of 5th Street

Carmel, CA93921

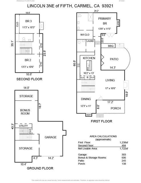
3 Bedrooms | 3 baths | 1722 sqft | MLS# ML82017762

Tract:

For Sale $4,750,000

Monica Ruggieri

Monica Ruggieri

AGENT | CAL BRE# 01828186


949.300.8600 |

Description

It has it all! This newly constructed 3 bedrooms and 2.5 baths, craftsman style home, is designed by Thomas Bateman Hood. The property is steps from the center of Carmel Village, with views of the water and a long list of amenities, that make this a truly unique property. There is lots of attention to details with coffered and wood ceilings, American white oak wood floors, radiant heating throughout, solar energy system with battery back-up, two Tesla wall charges, lots of built in storage and bonus basement rooms in the oversized garage, outdoor kitchen and the list goes on. Come and experience this well-crafted home.

Facts

Single Family Residence | Built in 2025 | Lot Size: 4096.00 sqft | HOA Dues: $0/month

Features

Listing provided by Susan Fox, Peninsula Real Estate Group, Inc.

Based on information from California Regional Multiple Listing Service, Inc. as of February 15, 2026. This information is for your personal, non-commercial use and may not be used for any purpose other than to identify prospective properties you may be interested in purchasing. Display of MLS data is usually deemed reliable but is NOT guaranteed accurate by the MLS. Buyers are responsible for verifying the accuracy of all information and should investigate the data themselves or retain appropriate professionals. Information from sources other than the Listing Agent may have been included in the MLS data. Unless otherwise specified in writing, Broker/Agent has not and will not verify any information obtained from other sources. The Broker/Agent providing the information contained herein may or may not have been the Listing and/or Selling Agent.

  • nearby properties

  • learn more about this property

Submit
Validating Captcha