2022 Bob White Ln

< back to properties

gallery view
map view

2022 Bob White Ln

Santa Cruz, CA95065

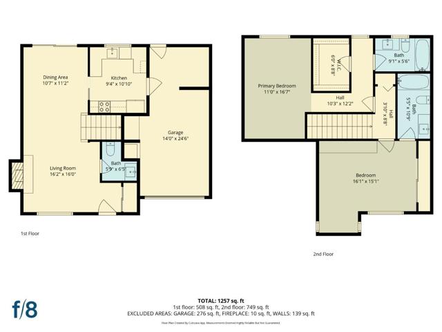
2 Bedrooms | 3 baths | 1421 sqft | MLS# ML82038726

Tract:

For Sale $829,950

Monica Ruggieri

Monica Ruggieri

AGENT | CAL BRE# 01828186


949.300.8600 |

Description

Welcome to 2022 Bob White Lane! This charming 2-story townhome features NEW MODERN KITCHEN! Complete with new appliances, new Quartz countertops and white cabinetry are accented with black hardware and stunning new sink with black faucet. Kitchen window offers a peaceful view of pasture below. Updated bathrooms throughout the home complete the modern look and make this a great find!! Nestled in the desirable Santa Cruz Gardens neighborhood, this home features a one-car garage, an additional assigned parking space, and a private backyard perfect for a cozy herb garden or relaxing outdoor retreat for you and your pet. This home offers easy access to local shopping,dining, parks, the hospital, and commuter routes, making it an excellent choice for those seeking both tranquility and convenience.

Facts

Condominium | Built in 1986 | Lot Size: 1350.00 sqft | HOA Dues: $545/month

Features

Listing provided by Karen DiLullo, Coldwell Banker Realty

Based on information from California Regional Multiple Listing Service, Inc. as of March 15, 2026. This information is for your personal, non-commercial use and may not be used for any purpose other than to identify prospective properties you may be interested in purchasing. Display of MLS data is usually deemed reliable but is NOT guaranteed accurate by the MLS. Buyers are responsible for verifying the accuracy of all information and should investigate the data themselves or retain appropriate professionals. Information from sources other than the Listing Agent may have been included in the MLS data. Unless otherwise specified in writing, Broker/Agent has not and will not verify any information obtained from other sources. The Broker/Agent providing the information contained herein may or may not have been the Listing and/or Selling Agent.

  • nearby properties

  • learn more about this property

Submit
Validating Captcha