Rancho Santa Fe, CA92067
6 Bedrooms | 5 baths | 4648 sqft | MLS# NDP2509310
Tract:
For Sale $3,599,000
Description
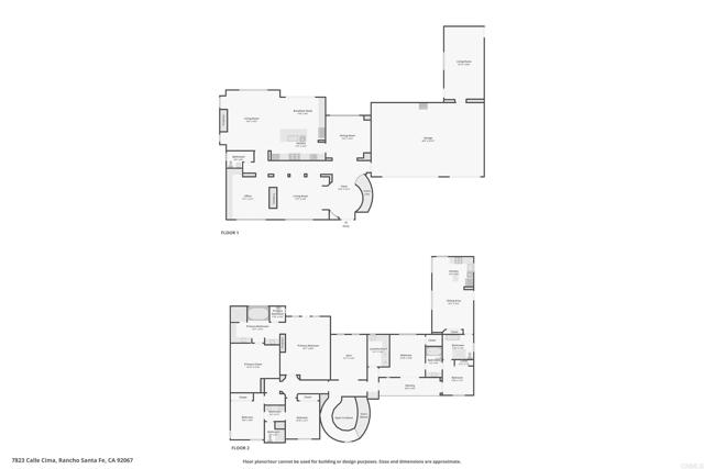
This private Mediterranean estate is set on an elevated 1.13-acre lot with sweeping mountain views at the end of a cul-de-sac in the prestigious guard-gated Cielo community within the highly sought-after R Roger Rowe School boundaries. Main residence offers 5 bedrooms, 3.5 baths, theater room, office, upstairs bonus room, along with an attached ADU that has a bedroom and bath. Grand driveway ascends to a circular motor court, where a meticulously landscaped yard and stunning fountain create a dramatic stage for arrival. Soaring two-story foyer with hardwood floors and a sweeping staircase welcome you. Formal living room has a fireplace framed by arched doorways, while the neighboring office is finished with custom built-ins. Kitchen features white cabinetry, a large center island, premium appliances, and daily dining that flows seamlessly into the family room with fireplace. Formal dining room and powder room complete the main level. Upstairs, primary suite offers a fireplace with raised hearth, private balcony, a spa-inspired bath with dual vanities, soaking tub, walk-in shower, and an expansive walk-in closet. Three additional bedrooms, 2-baths, laundry room, and bonus room complete the main residence. Attached ADU has a private entrance, full kitchen, living room, bedroom, and bath. Backyard is designed for entertaining with an oversized spa and cascading water feature, built-in BBQ island, fireplace, pergola, and multiple seating areas all surrounded by lush landscaping and mountain views. Entertainment continues with a private theater with separate exterior access. Additional highlights include 10KW owned solar system, 3-car garage, 2 tankless water heaters, EV charger, and wired for sound in select areas of the home with built-in speakers. Enjoy 24-hour guard-gated security, resort style amenities including a clubhouse, fitness center, pool, spa, tennis courts, pickleball, volleyball, basketball, & playgrounds.
Facts
Single Family Residence | Built in 2001 | Lot Size: 49222.00 sqft | HOA Dues: $778/month
Features
Built-in Features,Ceiling Fan(s),Crown Molding,Granite Counters,Open Floorplan,Recessed Lighting,Two Story Ceilings
Listing provided by Carole Downing, Berkshire Hathaway HomeService
Based on information from California Regional Multiple Listing Service, Inc. as of October 30, 2025. This information is for your personal, non-commercial use and may not be used for any purpose other than to identify prospective properties you may be interested in purchasing. Display of MLS data is usually deemed reliable but is NOT guaranteed accurate by the MLS. Buyers are responsible for verifying the accuracy of all information and should investigate the data themselves or retain appropriate professionals. Information from sources other than the Listing Agent may have been included in the MLS data. Unless otherwise specified in writing, Broker/Agent has not and will not verify any information obtained from other sources. The Broker/Agent providing the information contained herein may or may not have been the Listing and/or Selling Agent.